8711 Brierly Court Chevy Chase, MD 20815

ARTIST RETREAT tucked away on a quiet cul-de-sac in Chevy Chase!

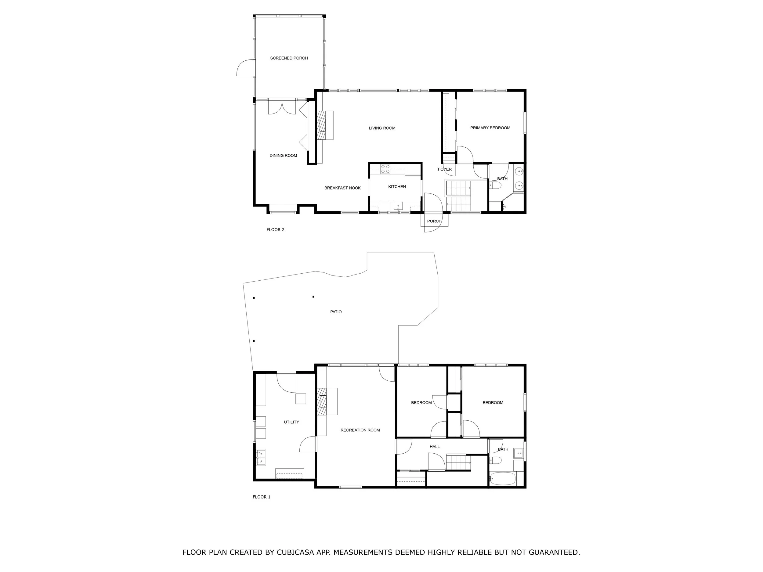
8711 Brierly Court is a beautifully maintained home that blends architectural charm with flexible, modern living. Thoughtfully designed and filled with warmth, this residence offers space to grow, create, and retreat - all just minutes from everything and set on a generous 10,000+ square foot lot. The main level features a sought-after primary suite with a spacious en suite bath, offering comfort and ease for daily living. The light-filled living room, perched high above the backyard, features oversized windows that frame views of your own private, tree-lined oasis, a stunning backdrop in every season. Whether you're entertaining or enjoying a quiet moment, this space delivers peace and beauty.

A dramatic dining room with exposed wood beams and clever hidden storage flows seamlessly into a generous screened-in porch, perfect for indoor-outdoor living. The custom kitchen stands out with striking zebrawood cabinetry, hardwood floors, and quality craftsmanship throughout. Downstairs, the walk-out lower level offers two additional bedrooms, a full bath, and a bright, open living space complete with a second fireplace.

Formerly used as an art studio, this area offers limitless possibilities - home office, guest suite, creative space, or all of the above. Set on a lushly landscaped lot with mature plantings and vibrant seasonal color, the expansive backyard is perfect for play, entertaining, or simply enjoying the calm of your own private escape. Just moments from the new Chevy Chase Lake development, with its dining, shopping, Amazon Fresh, and the future Purple Line Metro, you’ll also enjoy quick access to Rock Creek Park, Columbia Country Club, downtown Bethesda, and Friendship Heights.

Offering incredible flexibility with a main-level suite and plenty of space to adapt to your needs, this home is anything but cookie-cutter. It’s a well-kept, inspired retreat that can evolve with you.

3 BEDS - 2 BATHS - 2,315 SQFT

Schedule a Tour or Get More Info on This Property!

Amidst the competitive and ever-changing landscape of the real estate market, we are committed to helping you realize your real estate goals.

Please take a moment to share your information below, and I will promptly connect with you to provide additional details or arrange a tour of 8711 Brierly Court Chevy Chase MD 20815.

anna@theskygroup.com
(202) 946-8300

Previous
Previous

7001 SYCAMORE AVENUE, TAKOMA PARK MD 20912

Next
Next

1323 WEBSTER ST NE, WASHINGTON, DC 20017